TIGERMAT Fogasléc, fémszál erősítésű műanyag, 1m-es, 6 felfogatással, V alakú - csendes működés.
TIGERMAT Fogasléc - Fémszál Erősítésű Műanyag, 1m
A TIGERMAT Fogasléc egy professzionális minőségű, fémszál erősítésű műanyagból készült kapufogasléc, amelyet kifejezetten tolókapuk automatizálásához fejlesztettek ki. A termék kiváló választás ipari és lakossági felhasználásra egyaránt, ahol a megbízhatóság, a csendes működés és a hosszú élettartam alapkövetelmény.
Termékjellemzők
- Fémszál erősítés: A fogasléc belső fémszálas megerősítése biztosítja a nagyfokú merevséget és terhelhetőséget, miközben a külső műanyag burkolat gondoskodik a korrózióállóságról és a halk működésről.
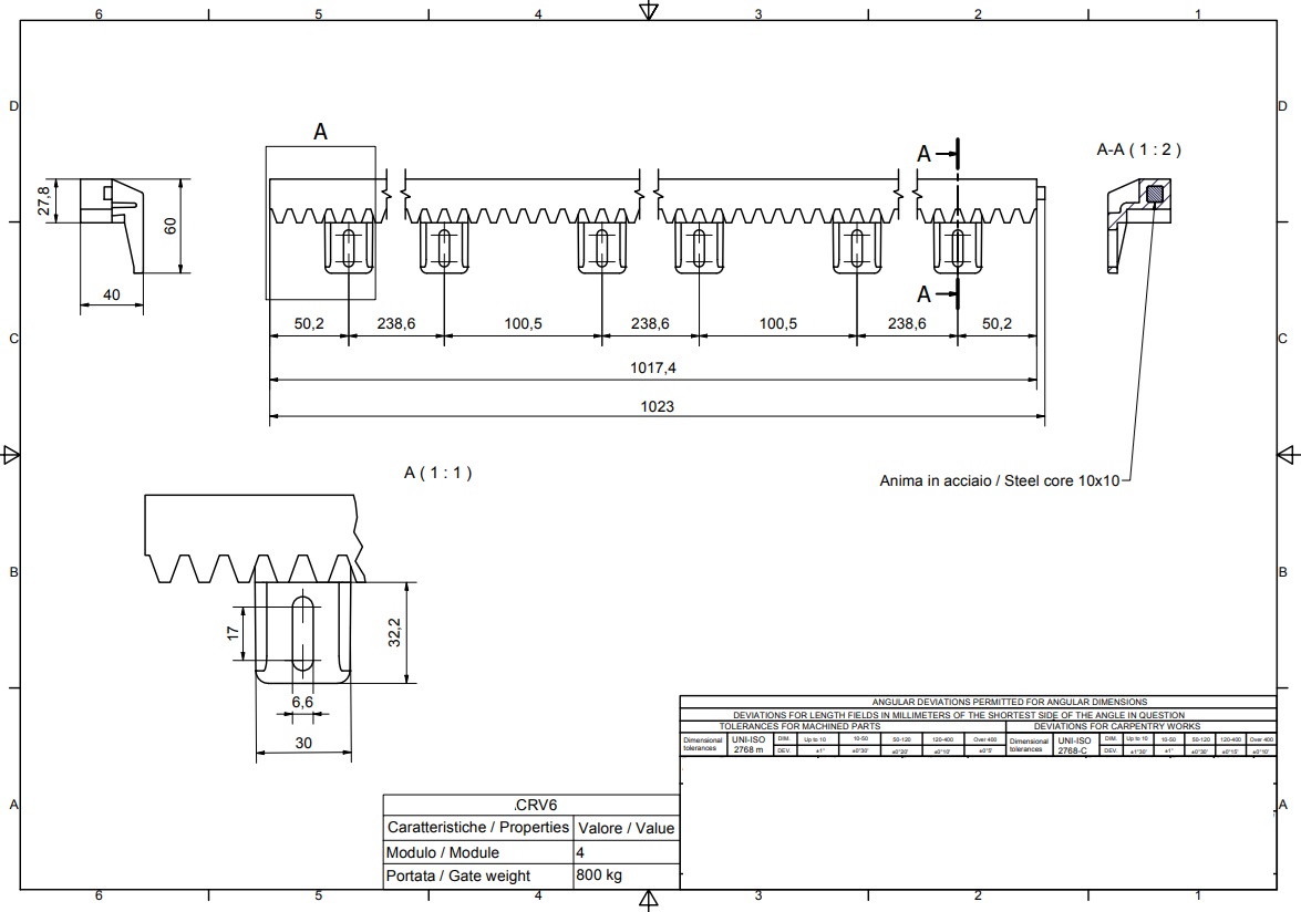
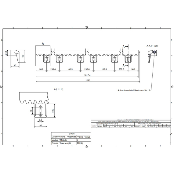
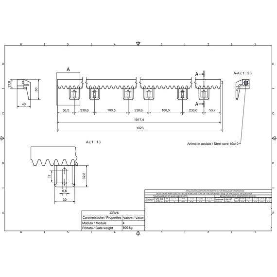
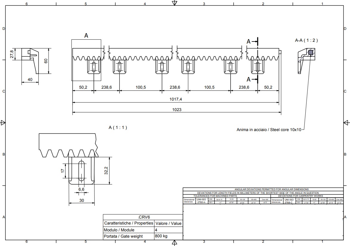
- 1 méteres moduláris kialakítás: A 1 méteres szegmensek lehetővé teszik a gyors és egyszerű illesztést különböző hosszúságú kapukhoz, valamint megkönnyítik a szállítást és a raktározást.
- 6 felfogatási pont: A fogaslécen kialakított hat rögzítési pont stabil és rezgésmentes rögzítést biztosít, ami elengedhetetlen a precíz és hosszú távon is megbízható működéshez.
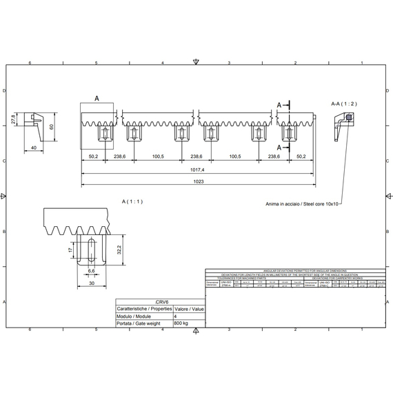
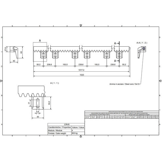
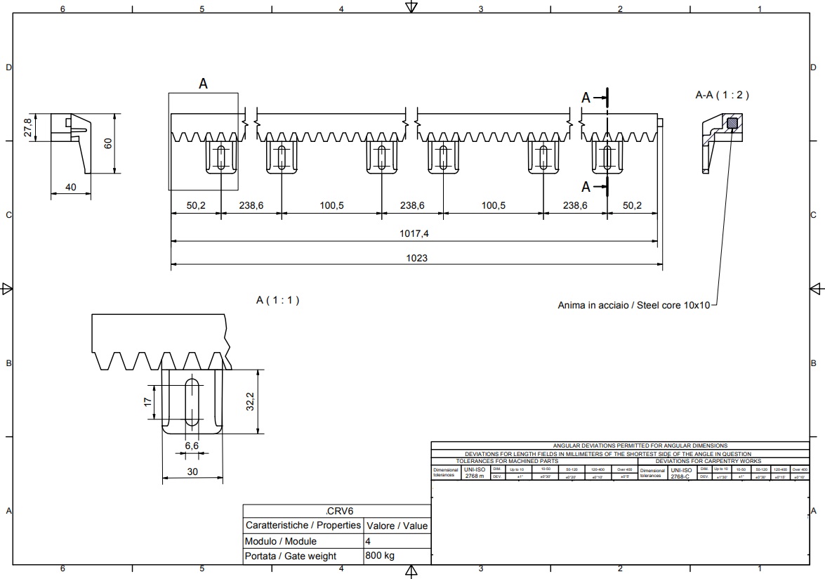
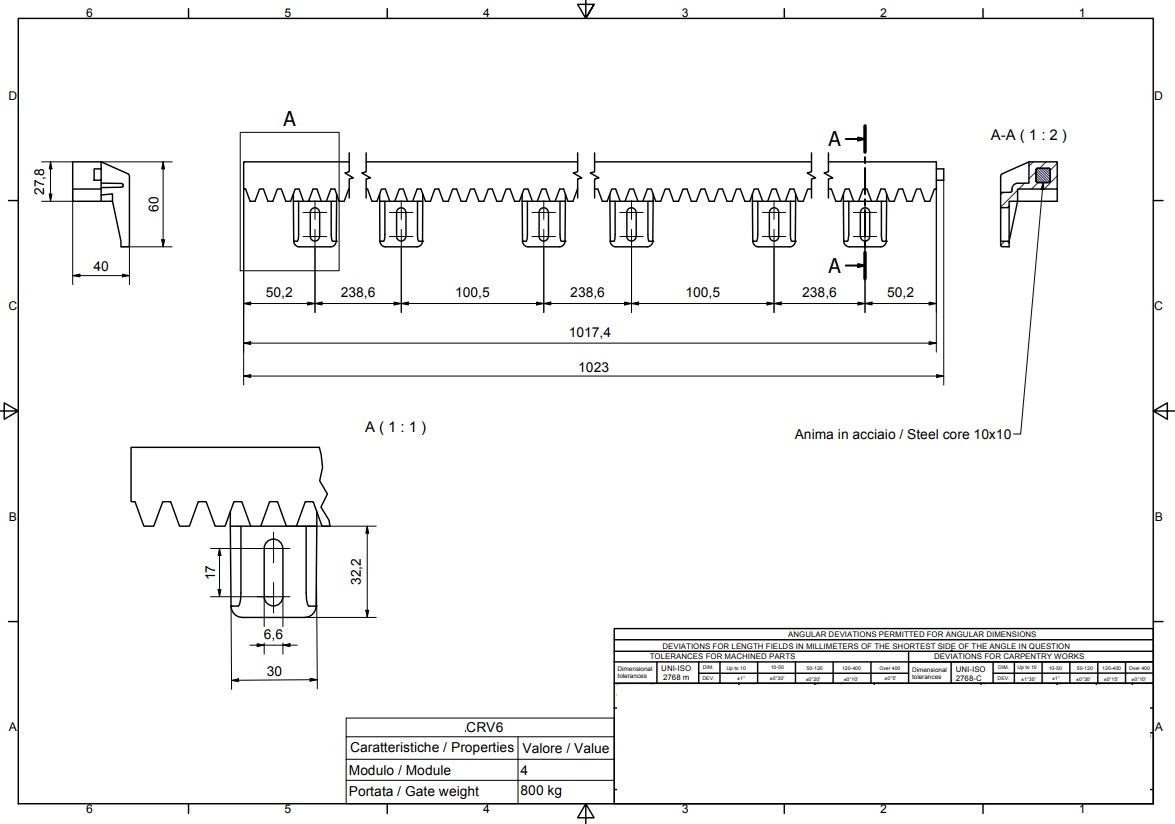
- 800 kg-os kapukhoz: A robusztus szerkezet lehetővé teszi akár 800 kg tömegű kapuk mozgatását is, így a termék kiválóan alkalmazható nagyobb ipari kapuk esetén is.
- V alakú fogazat: A V profilú fogazat optimalizálja a hajtómű és a fogasléc közötti kapcsolatot, csökkentve a súrlódást és a kopást, ezáltal növelve az élettartamot és a működési hatékonyságot.
- Csendes működés: Az anyagösszetétel és a fogazat kialakítása révén a fogasléc működése rendkívül halk, ami különösen előnyös lakóövezetekben vagy zajérzékeny környezetben.
- Csavarok nélkül: A fogasléc csavarokat nem tartalmaz, így a rögzítéshez szükséges szerelési anyagokat külön kell biztosítani, lehetővé téve a testreszabott rögzítési megoldásokat.
Alkalmazási területek
A TIGERMAT Fogasléc ideális választás minden típusú tolókapuhoz, legyen szó ipari csarnokok, logisztikai központok, társasházak vagy családi házak kapuiról. Különösen ajánlott olyan helyszíneken, ahol a nagy teherbírás, a halk működés és a hosszú élettartam kulcsfontosságú szempontok.
Műszaki adatok
| Termék típusa | Fémszál erősítésű műanyag fogasléc |
|---|---|
| Hossz | 1 méter |
| Teherbírás | 800 kg-ig |
| Felfogatási pontok száma | 6 |
| Fogazat típusa | V alakú |
| Rögzítő elemek | Nem tartalmaz csavarokat |
Előnyök szakemberek számára
- Megbízhatóság: A fémszálas erősítés és a precíz gyártási technológia garantálja a hosszú távú, problémamentes működést.
- Gyors telepítés: A moduláris kialakítás és a jól elhelyezett felfogatási pontok gyors és egyszerű szerelést tesznek lehetővé.
- Halk működés: Ideális választás zajérzékeny környezetbe, mint például lakóparkok vagy irodai létesítmények.
- Rugalmasság: A csavarmentes kivitel lehetővé teszi a saját rögzítési rendszer kialakítását, igazodva az adott kapuszerkezethez.
- Nagy teherbírás: Akár 800 kg-os kapuk mozgatására is alkalmas, így széles körű felhasználást biztosít.
A TIGERMAT Fogasléc minden olyan szakember számára ideális választás, aki prémium minőségű, tartós és csendes működésű megoldást keres tolókapuk automatizálásához. A termék műszaki paraméterei és kialakítása garantálja a professzionális szintű teljesítményt és a hosszú távú megbízhatóságot.
- Fémszál erősítésű műanyag
- lefelé álló
Nem találtunk értékelést
